Help Future-Proof the All Saints Centre
The £180,000 Appeal
Since 1907, the All Saints Centre has been the heart of our community. After 120 years of constant use, our historic home needs more than just a facelift—it needs a foundation for the future.
We are raising £180,000 to transform this well-loved landmark into a modern, inclusive hub. This vital capital project includes:
UNIVERSAL ACCESS:
Installing a new ramp and additional ground floor room that is fully accessible.
ESSENTIAL RESTORATION
Expertly repairing plasterwork and structural elements to preserve our 1907 heritage.
MODERN FACILITIES:
Modern Facilities: Relocating and fully renovating our outdated kitchen and toilet facilities for a cleaner, more functional experience.
Help us bridge the gap between our historic past and an accessible future. DONATE TODAY. Thank you!
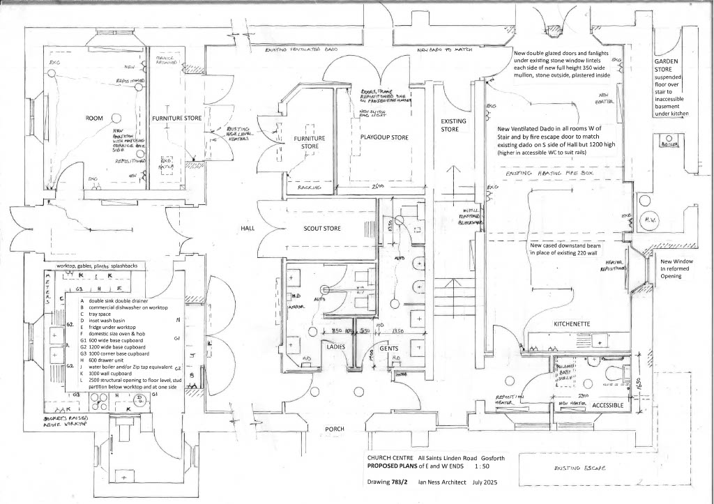
Detailed drawings of our proposed modernisation are shown below together with typical images of areas we are looking to improve.
How to Donate
Click the following link:
By Bank Transfer using the details below:
Sort code 20-59-61
Account number 00676314
Scan the QR Code:
Help us future-proof the All Saints Centre.
We have big plans for our building, but we can’t do it without your voice. As we prepare for our upcoming renovations, please take a moment to share your thoughts. Your feedback will help us prioritise repairs and strengthen our grant applications by completing this short survey.
For further information or to contact us about our work please email centreinfo@allsaintsgosforth.onmicrosoft.com




